PERMIS D’URBANISME
Commune: Bruxelles (1150 Woluwe-Saint-Pierre)
Adresse: Avenue des Jockeys 5
Typologie: Maison unifamiliale 3 façades
Description du projet
Cette demande de permis d’urbanisme concerne une maison unifamiliale 3 façades située Avenue des Jockeys 5 à 1150 Woluwe-Saint-Pierre. Le projet vise à régulariser plusieurs actes et travaux effectués sans l’octroi préalable d’un permis d’urbanisme, incluant le comblement de l’escalier menant du sous-sol à la terrasse arrière, la modification de la porte de garage, la transformation des combles en locaux habitables en 2012, et le remplacement des châssis en juin 2015.
Contexte et Cadre Légal
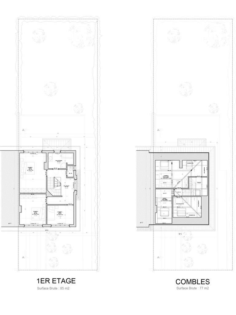
Les demandeurs, Monsieur Michel DEJAIFFE et Madame Bénédicte LAURENS, sont propriétaires depuis 2009 d’une maison comprenant un sous-sol avec garage, buanderie et 4 caves, un rez-de-chaussée avec séjour de 62,5m² incluant salon/salle à manger/cuisine, WC et jardin arrière avec terrasse, un 1er étage avec 3 chambres, salle de bain et WC, et des combles aménagés avec une chambre de 14,6m², un bureau de 7m² et une salle de douche. Le bien est situé en zone d’habitation et soumis aux prescriptions du Règlement Régional d’Urbanisme (RRU).
Travaux et Modifications Entrepris
- Comblement de l’escalier menant du sous-sol à la terrasse arrière: La situation antérieure présentait un caractère dangereux avec une trémie dans la terrasse nécessitant une attention constante pour éviter les chutes. Les travaux de comblement ont permis de sécuriser les lieux, d’agrandir la superficie de la terrasse, de gagner de l’espace de vie extérieur, d’améliorer substantiellement l’esthétique de la zone de cour et jardin, de créer un petit volume supplémentaire d’environ $1~m^{2}$ au sous-sol avec ventilation intégrée, et de maintenir les superficies perméables de la parcelle.
- Modification de la porte de garage: Remplacement de l’ancienne porte de garage par une nouvelle porte offrant une esthétique plus moderne et soignée, une meilleure isolation du bien (l’ancienne porte n’était qu’une simple tôle métallique), et une intégration parfaite dans le cadre bâti environnant (portes similaires présentes aux n°4, 6, 7 et 10 de l’avenue).
- Transformation des combles en locaux habitables (2012): Aménagement des combles en chambre de 14,6 $m^{2}$, bureau de 7 $m^{2}$ et salle de douche. Ces aménagements, en principe dispensés de permis d’urbanisme (travaux de transformation intérieurs), offrent une 4ème chambre avec belle superficie, des espaces de vie supplémentaires, une conformité aux normes minimales d’habitabilité du titre 2 du RRU, des hauteurs sous plafond adéquates (non inférieures à 2,30m sur plus de la moitié de la superficie), et des surfaces éclairantes suffisantes (≥ 1/12ème de la superficie plancher).
- Remplacement des châssis (juin 2015): Châssis en PVC blanc posés en façade avant. Bien que non conformes à la situation de droit (bois), ils s’intègrent bien architecturalement à la façade, correspondent aux châssis environnants (majoritairement en PVC blanc), et seront remplacés par des châssis en bois lors du prochain changement (placement récent ne justifiant pas un remplacement immédiat d’un point de vue écologique).
Contraintes et Conformité Urbanistique
L’ensemble des actes et travaux réalisés respecte globalement les prescriptions du RRU. Les hauteurs sous plafond des combles aménagés sont conformes aux normes minimales d’habitabilité, et les surfaces éclairantes respectent les ratios requis. Les modifications apportées améliorent la sécurité, l’habitabilité, l’isolation et l’esthétique du bien, tout en respectant le caractère architectural du quartier. Les châssis en PVC, bien que non conformes à la situation de droit, présentent une bonne intégration et seront remplacés par du bois lors du prochain renouvellement.
Justification et Conformité
Le projet est considéré comme admissible et conforme au critère du bon aménagement des lieux. Les modifications apportent une amélioration substantielle de la sécurité (comblement de la trémie dangereuse), de l’habitabilité (création d’une 4ème chambre et d’espaces supplémentaires), de l’isolation thermique (nouvelle porte de garage), et de l’esthétique générale du bien. Les travaux réalisés n’ont aucun impact négatif sur le voisinage et s’intègrent harmonieusement dans le cadre bâti environnant.
Conclusion Générale
Le projet assure la mise en conformité de la maison unifamiliale en régularisant des travaux qui ont amélioré significativement la qualité, la sécurité et le confort du bien. Les modifications respectent les prescriptions urbanistiques fondamentales et contribuent positivement à la qualité de vie des occupants sans porter atteinte au voisinage ou au caractère du quartier. La transformation des combles offre des espaces habitables supplémentaires conformes aux normes en vigueur.










