PERMIS D’URBANISME
Commune: Bruxelles (1000 Ville de Bruxelles)
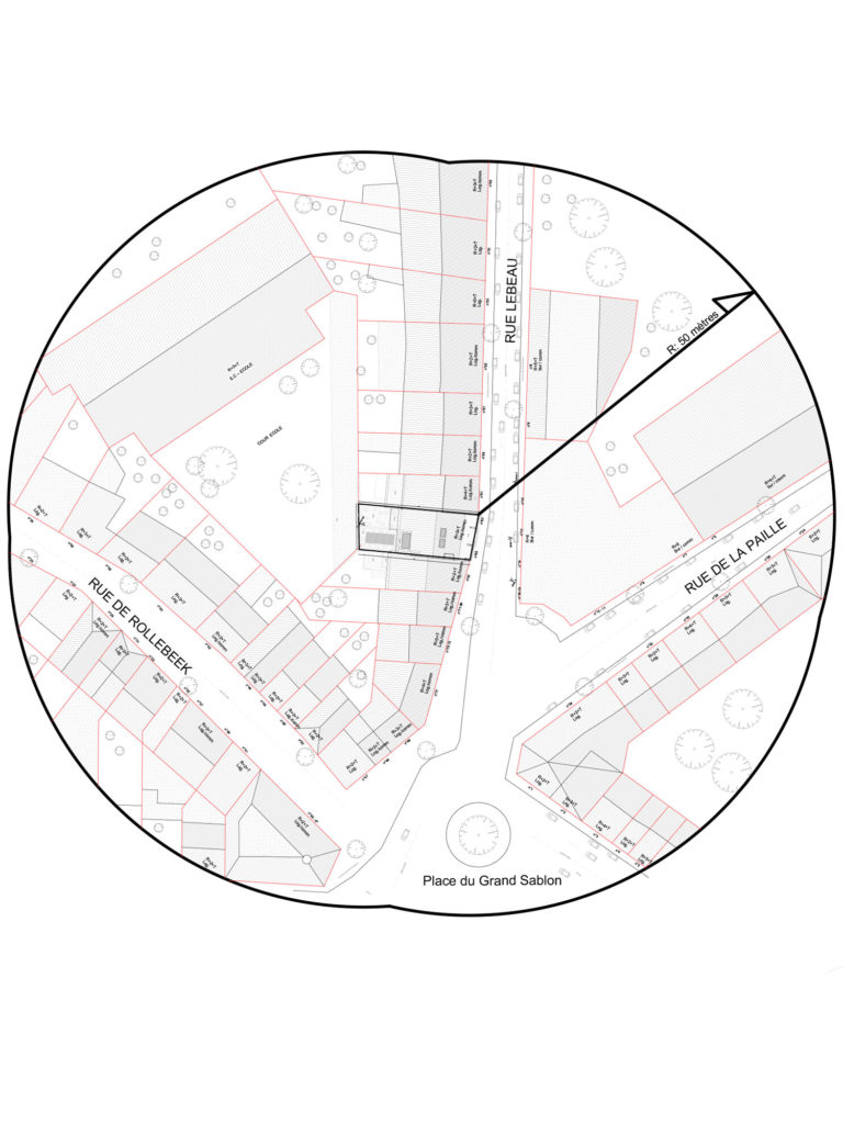
Adresse: Rue Lebeau 63-65
Typologie: Maison de commerce avec 4 appartements
Description du projet
Cette demande de permis d’urbanisme concerne un immeuble mixte sis Rue Lebeau 63-65 à 1000 Bruxelles (Ville de Bruxelles). Le projet vise à régulariser une maison de commerce avec 4 appartements aux étages. L’immeuble présente une typologie mixte caractéristique du centre de Bruxelles, avec un espace commercial au rez-de-chaussée et 4 unités de logement (appartements) aux étages supérieurs, pour une surface totale de 550 $m^{2}$.
Contexte et Cadre Légal
Le bien est situé dans la Ville de Bruxelles, dans une zone bénéficiant d’une localisation centrale avec proximité des transports en commun, accès aux services et équipements urbains, et animation commerciale et culturelle. La rue Lebeau s’inscrit dans un tissu urbain dense du centre-ville où la mixité fonctionnelle commerce-logement est traditionnelle et encouragée. Le bien est situé en zone mixte à vocation commerciale et résidentielle, et est soumis aux prescriptions du RRU et du PRAS. Cette configuration mixte permet de maintenir la vitalité commerciale au niveau de la rue tout en offrant des logements en centre-ville.
Travaux et Modifications Entrepris
- Commerce en rez-de-chaussée: Maintien et régularisation de l’espace commercial avec vitrine sur rue et accès direct depuis l’espace public, contribuant à l’animation commerciale de la rue Lebeau.
- 4 appartements aux étages: Régularisation de 4 unités de logement réparties sur les étages supérieurs, chacune disposant d’un accès indépendant via les parties communes de l’immeuble.
- Distribution des logements: Organisation des étages pour créer 4 appartements de tailles variées, permettant de répondre à différents besoins (studios, appartements 1 ou 2 chambres, etc.).
- Aménagement des espaces communs: Création d’un hall d’entrée privatif pour les logements, distinct de l’accès commercial, et d’une circulation verticale (escaliers) desservant les différents niveaux.
- Respect des normes d’habitabilité: Conformité de chaque logement aux prescriptions du titre 2 du RRU en matière de surfaces éclairantes, hauteurs sous plafond, ventilation, et équipements sanitaires.
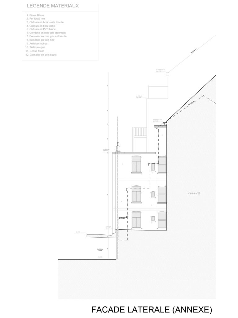
- Préservation du caractère architectural: Maintien des caractéristiques architecturales de l’immeuble, cohérent avec le tissu urbain du centre-ville.
Contraintes et Conformité Urbanistique
Le projet respecte la vocation mixte de la zone en combinant une fonction commerciale au rez-de-chaussée avec une fonction résidentielle aux étages. Cette configuration est conforme aux prescriptions du PRAS pour le centre-ville et contribue à maintenir l’animation commerciale tout en offrant une offre de logements urbains. Les 4 appartements respectent les prescriptions du RRU relatives aux normes d’habitabilité, avec des surfaces éclairantes conformes, des hauteurs sous plafond adéquates, et des équipements sanitaires réglementaires. La séparation des accès (commerce et logements) garantit le bon fonctionnement de la mixité.
Justification et Conformité
Le projet est considéré comme admissible et conforme au critère du bon aménagement des lieux. La régularisation vise à mettre en conformité l’immeuble avec les normes urbanistiques, préserver la vocation mixte commerce-logement typique du centre-ville, garantir la qualité des logements et de l’espace commercial, et contribuer au dynamisme du quartier. La configuration mixte permet de maintenir l’animation commerciale au niveau de la rue, d’offrir des logements en centre-ville dans un quartier bien desservi, d’optimiser l’utilisation du bâtiment sur plusieurs niveaux, et de contribuer à la mixité fonctionnelle du quartier.
Conclusion Générale
Le projet assure la régularisation d’un immeuble mixte de 550 $m^{2}$ combinant un commerce en rez-de-chaussée et 4 appartements aux étages. Cette configuration typique du centre de Bruxelles contribue à la vitalité urbaine en maintenant l’animation commerciale tout en offrant des logements de qualité dans un quartier central bien desservi. La régularisation garantit la conformité aux normes urbanistiques actuelles et la qualité tant de l’espace commercial que des logements. L’immeuble s’inscrit harmonieusement dans le tissu urbain de la Ville de Bruxelles et contribue à la mixité fonctionnelle recherchée dans le centre-ville.

















