PERMIS D’URBANISME
Commune: Bruxelles (1000 Ville de Bruxelles)
Adresse: Rue des Bouchers 61
Typologie: Maison de commerce avec chambres touristiques
Description du projet
Cette demande de permis d’urbanisme concerne un bien sis Rue des Bouchers 61 à 1000 Bruxelles (Ville de Bruxelles). Le projet vise à régulariser une maison de commerce avec chambres touristiques aux étages supérieurs. Le bien combine une fonction commerciale au rez-de-chaussée avec une activité d’habitation touristique aux étages, reflétant la vocation mixte du centre historique de Bruxelles.
Contexte et Cadre Légal
Le bien est situé dans la rue des Bouchers, artère emblématique du centre historique de Bruxelles réputée pour sa concentration de restaurants et commerces de bouche. Cette localisation privilégiée dans le quartier de l’Îlot Sacré bénéficie d’un flux touristique important et d’une animation commerciale permanente. Le bien est situé en zone mixte à vocation commerciale et touristique, et est soumis aux prescriptions du RRU et du PRAS. La configuration mixte commerce-hébergement touristique est typique et appropriée pour cette zone du centre historique.
Travaux et Modifications Entrepris
- Rez-de-chaussée: Maintien et régularisation de l’espace commercial, avec vitrine sur rue et accès direct depuis l’espace public, permettant l’animation commerciale de la rue des Bouchers.
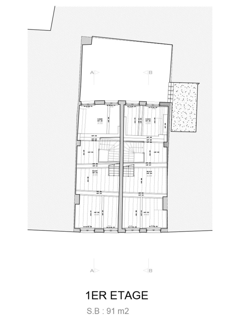
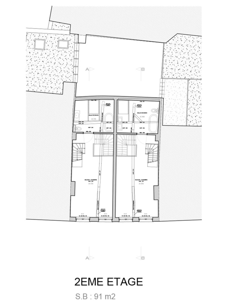
- Étages supérieurs: Régularisation des chambres touristiques réparties sur les niveaux supérieurs, offrant un hébergement de qualité pour les visiteurs de la capitale.
- Aménagements intérieurs: Configuration des espaces pour garantir le confort des visiteurs tout en respectant les normes d’habitabilité applicables aux hébergements touristiques.
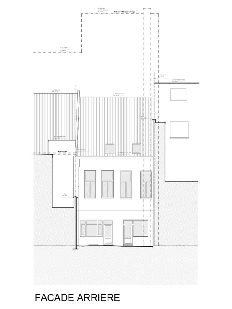
- Préservation du caractère architectural: Maintien des caractéristiques architecturales du bâtiment, cohérent avec le caractère historique et touristique du quartier.
Contraintes et Conformité Urbanistique
Le projet respecte la vocation mixte de la zone en combinant une fonction commerciale au rez-de-chaussée avec une fonction d’hébergement touristique aux étages. Cette configuration est conforme aux prescriptions du PRAS pour le centre-ville et contribue à maintenir l’animation commerciale tout en offrant une offre d’hébergement touristique. Les aménagements intérieurs respectent les normes de sécurité et d’habitabilité applicables aux hébergements touristiques. La préservation du caractère architectural du bâtiment est assurée.
Justification et Conformité
Le projet est considéré comme admissible et conforme au critère du bon aménagement des lieux. La typologie mixte commerce-hébergement touristique est particulièrement adaptée au contexte urbain du centre historique de Bruxelles et répond aux besoins de la zone touristique de l’Îlot Sacré. Le projet contribue à maintenir l’animation commerciale de la rue des Bouchers tout en offrant des logements touristiques de qualité pour les visiteurs. Cette configuration préserve le caractère historique et touristique du quartier tout en optimisant l’utilisation du bâtiment.
Conclusion Générale
Le projet assure la régularisation d’une maison de commerce avec chambres touristiques aux étages, configuration typique et appropriée pour le centre historique de Bruxelles. La combinaison d’une fonction commerciale au rez-de-chaussée et d’une activité d’hébergement touristique aux étages contribue à la vitalité économique et touristique du quartier tout en préservant son caractère. Le projet respecte les prescriptions urbanistiques et s’inscrit harmonieusement dans le tissu urbain du centre-ville.










