PERMIS D’URBANISME
Commune: Bruxelles (1070 Anderlecht)
Adresse: Rue des Mégissiers 54
Typologie: Immeuble de rapport
Description du projet
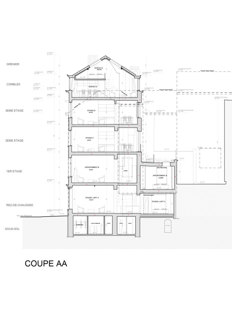
Cette demande de permis d’urbanisme concerne un immeuble de rapport sis Rue des Mégissiers 54 à 1070 Bruxelles (Anderlecht). Le projet vise à régulariser cet immeuble à logements multiples offrant une surface totale de 360 $m^{2}$, répartie sur plusieurs niveaux pour accueillir plusieurs unités de logement. Un immeuble de rapport est un bâtiment conçu pour héberger plusieurs logements locatifs, maximisant ainsi la rentabilité de la parcelle tout en contribuant à l’offre de logements urbains.
Contexte et Cadre Légal
Le bien est situé à Anderlecht, dans un quartier résidentiel en développement bénéficiant d’une bonne desserte en transports en commun et en commerces de proximité. L’immeuble de rapport offre une surface totale de 360 $m^{2}$ permettant d’accueillir plusieurs unités de logement de tailles variées. Le bien est situé en zone d’habitation et est soumis aux prescriptions du RRU. Les immeubles de rapport constituent une typologie importante dans le tissu urbain bruxellois, contribuant à la densification raisonnée et à la diversification de l’offre de logements locatifs.
Travaux et Modifications Entrepris
- Organisation de plusieurs unités de logement indépendantes: Répartition de la surface totale de 360 $m^{2}$ sur plusieurs niveaux pour créer plusieurs logements distincts, chacun disposant d’espaces de vie, de chambres, d’une cuisine, et d’une salle de bain.
- Aménagement d’espaces communs fonctionnels: Création de halls d’entrée, circulations verticales (escaliers), et espaces techniques permettant le bon fonctionnement de l’immeuble collectif.
- Distribution optimale des espaces privatifs: Conception des logements pour garantir le confort et la fonctionnalité de chaque unité, avec des surfaces éclairantes conformes et des hauteurs sous plafond adéquates.
- Équipements techniques: Installation des équipements nécessaires (compteurs individuels, systèmes de chauffage, gestion des déchets, etc.) pour assurer l’autonomie de chaque logement et le bon fonctionnement de l’immeuble.
- Respect du caractère architectural: Maintien ou amélioration des caractéristiques architecturales de l’immeuble pour assurer son intégration harmonieuse dans le quartier.
Contraintes et Conformité Urbanistique
L’immeuble de rapport respecte les prescriptions du RRU en matière de normes d’habitabilité pour les logements collectifs. Chaque unité de logement dispose de surfaces éclairantes conformes aux ratios requis et de hauteurs sous plafond adéquates. Les espaces communs sont conçus pour garantir le confort et la sécurité des occupants. La distribution des logements sur les différents niveaux permet d’optimiser l’utilisation de la parcelle tout en respectant les normes urbanistiques. L’immeuble contribue à l’offre de logements locatifs dans le quartier d’Anderlecht.
Justification et Conformité
Le projet est considéré comme admissible et conforme au critère du bon aménagement des lieux. La régularisation de l’immeuble de rapport vise à mettre en conformité le bâtiment avec les normes urbanistiques actuelles, garantir la qualité des logements proposés en respectant les normes d’habitabilité, et assurer la sécurité et le confort des occupants. L’immeuble de rapport constitue une typologie appropriée pour un quartier urbain, permettant d’optimiser l’utilisation du foncier tout en offrant plusieurs logements de qualité. Le projet répond aux besoins du marché immobilier locatif urbain.
Conclusion Générale
Le projet assure la régularisation d’un immeuble de rapport de 360 $m^{2}$ à Anderlecht, contribuant à l’offre de logements locatifs dans un quartier en développement. L’immeuble est organisé pour accueillir plusieurs unités de logement indépendantes, avec des espaces communs fonctionnels et une distribution optimale des espaces privatifs. La régularisation garantit la conformité aux normes urbanistiques actuelles et la qualité des logements proposés. L’immeuble de rapport s’inscrit harmonieusement dans le tissu urbain d’Anderlecht et contribue à la densification raisonnée du quartier.










