RUE DE HAERNE 74, 1040 BRUXELLES

Accueil > Communes > Etterbeek > RUE DE HAERNE 74, 1040 BRUXELLES

PERMIS D’URBANISME

Commune: Bruxelles (1040 Etterbeek)

Adresse: Rue de Haerne 74

Typologie: Studio

Description du projet

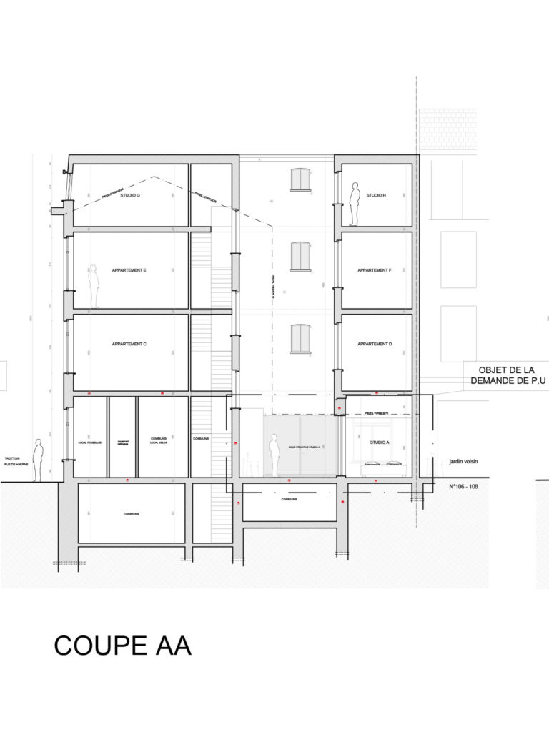
Cette demande de permis d’urbanisme concerne un studio sis Rue de Haerne 74 à 1040 Etterbeek. Le projet vise à régulariser ce logement compact et fonctionnel offrant une surface habitable de 90 $m^{2}$, configuration idéale pour une personne seule ou un couple sans enfant. Le bien est conçu pour optimiser l’espace disponible tout en garantissant le confort et la fonctionnalité nécessaires à un logement moderne.

Contexte et Cadre Légal

Le bien est situé dans la commune d’Etterbeek, dans un quartier résidentiel bien desservi. Situé rue de Haerne, le studio bénéficie d’une localisation pratique avec accès aux transports en commun et aux commerces de proximité. Le bien est situé en zone d’habitation et est soumis aux prescriptions du RRU. Cette typologie de logement répond à la demande croissante de petites unités habitables dans les quartiers résidentiels d’Etterbeek.

Travaux et Modifications Entrepris

  • Aménagement d’un espace de vie principal optimisé: Organisation des espaces pour créer un studio fonctionnel avec zone séjour/chambre, coin cuisine intégré, et salle de bain, le tout dans une superficie de 90 $m^{2}$.
  • Optimisation de l’espace habitable: Configuration des espaces pour maximiser le confort et la fonctionnalité tout en respectant les normes d’habitabilité du titre 2 du RRU.
  • Aménagements intérieurs conformes: Respect des hauteurs sous plafond minimales, des surfaces éclairantes requises, et des normes de ventilation pour garantir la qualité du logement.
  • Équipements sanitaires conformes: Installation d’une salle de bain complète respectant les prescriptions du RRU en matière d’hygiène et de confort.

Contraintes et Conformité Urbanistique

Le studio respecte les prescriptions du RRU relatives aux normes d’habitabilité des logements, avec des surfaces éclairantes conformes aux ratios requis et des hauteurs sous plafond adéquates. L’aménagement intérieur est conçu pour optimiser l’utilisation de l’espace tout en garantissant le confort des occupants. La surface de 90 $m^{2}$ permet de créer un logement spacieux et confortable, offrant un bon compromis entre compacité et habitabilité. Le projet contribue à la diversité de l’offre de logements dans la commune d’Etterbeek.

Justification et Conformité

Le projet est considéré comme admissible et conforme au critère du bon aménagement des lieux. Le studio offre un logement de qualité adapté aux besoins d’une personne seule ou d’un couple, avec des espaces bien agencés et fonctionnels. L’optimisation de l’espace disponible permet de créer un logement confortable tout en respectant les normes urbanistiques. Cette typologie de logement répond aux besoins du marché immobilier urbain et contribue à la diversité de l’offre résidentielle dans le quartier.

Conclusion Générale

Le projet assure la régularisation d’un studio de 90 $m^{2}$ offrant un logement compact et fonctionnel adapté à la vie urbaine moderne. L’aménagement respecte les prescriptions urbanistiques et les normes d’habitabilité, tout en optimisant l’utilisation de l’espace disponible. Le studio contribue positivement à l’offre de logements dans le quartier résidentiel d’Etterbeek et répond aux besoins d’une clientèle recherchant un logement de taille intermédiaire dans un quartier bien desservi.

Fiche du permis d’urbanisme source Openpermits.brussels

Localisation

Adresse : Rue de Haerne 74, 1040 Bruxelles (Etterbeek)

Municipalité principale : Bruxelles (Etterbeek)

Identification

Référence Nova : 05/PU/1989050

ID dossier : 1989050

Voir sur OpenPermits :Consulter la fiche officielle

Objet de la demande

Régularisation d’un studio de 90 m² offrant un logement compact et fonctionnel adapté à la vie urbaine moderne

Surfaces concernées

  • Habitation: 90 m²

ils nous ont fait confiance

x